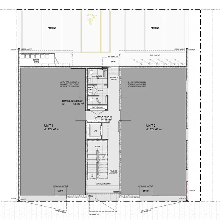
Leasable Units
Explore six exceptional units available in Three Parks, ranging from 127m² to 142m².
Situated in a prime, high-traffic location within the dynamic and ever-growing business district of Wanaka, KAB Commercial’s latest venture presents an exceptional opportunity.
Number 9 Sir Tim Wallis Drive will soon be home to six premium, high-spec commercial spaces, each designed with versatility and modern business needs in mind. This is your chance to secure a prestigious address in one of the region’s most vibrant areas and set the stage for your business to thrive in a flourishing community.
Explore six exceptional units available in Three Parks, ranging from 127m² to 142m².
We can collaborate with you to find the best configuration for your business.
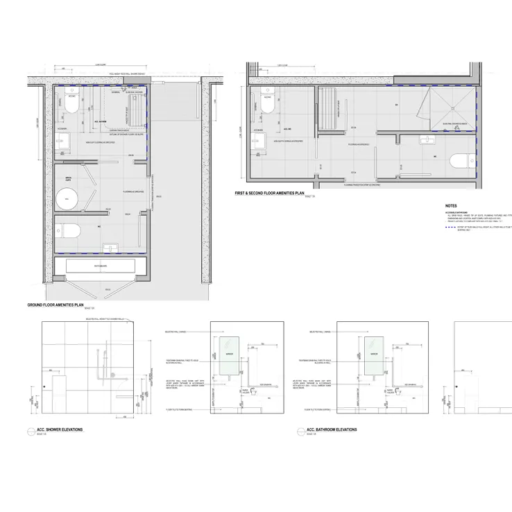
A blank canvas awaiting your vision to bring this space to life.
Utilise our local knowledge to boost your business opportunity.
The latest commercial opportunity in a desirable business location.
A vibrant, easy access, high traffic area. Did we mention the views?